FOR SALE BY MODERN METHOD OF AUCTION
Auction Guide* £170,000 - £190,000 + Fees**
VAT
This property is not elected for VAT
BIDDING
The Auction will take place online via our website www.sealeys.co.uk/auctions on Wednesday 28th May 2025 from 12pm, BIDDING WILL CLOSE AT 2pm. In order for you to bid, you will be required to register your card for an 'auction entrance fee', this is made up of an 'administration fee' and a 'buyers security fee'. This will only be charged to the successful buyer. Please see the Buyers Guide and the Common Auction Conditions for more information. If you have any further questions please contact the agent, or seek legal advice. The required 'auction entrance fee' for this LOT is - £5,000
LOCATION DESCRIPTION
Lowfield Street is situated on the one way system running through Dartford town centre. The property is situated opposite the Priory shopping centre. Dartford Train station is a 0.3 mile walk. There are a number of public car parks in the vicinity.
PROPERTY DESCRIPTION
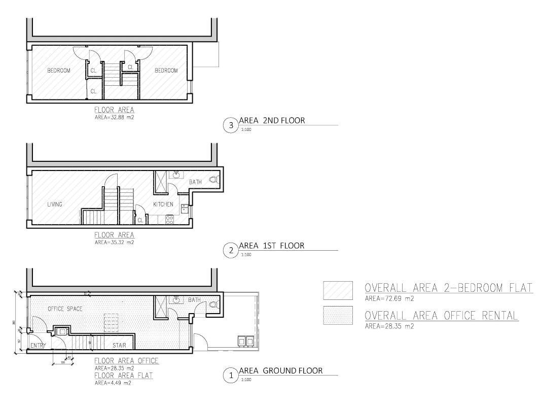
A 3 storey shop measuring approximately 1,096 SqFt in total with planning permission to convert to a ground floor 'E' class unit with a 2 bedroom self contained maisonette to the upper floors. The property was fired damaged in 2022 and a full refurbishment is required. The planning permission can be found on the Dartford Borough Council website Ref. 25/00039/FUL
VIEWINGS
Due to the condition of the property, we are unable to facilitate viewings.
CURRENT BUSINESS RATES
Figures from the Valuation Office show a current rateable value £0 as at April 2025 due to the property being unusable.
CURRENT CLASS OF BUSINESS USE
The property was previously used under the 'E' class use. We advise each interested party to verify this via planning department of the local authority Dartford Borough Council.
ADDITIONAL INFORMATION
Our buyers terms and conditions are available on our website, along with the legal pack. We strongly recommend you read over all of the information available and seek legal advice before you place a bid. All bidders are subject to Anti Money Laundering regulations and we as agents are required to carry out checks on you before you can bid. To ensure you don't miss out on the auction, please, register early to allow us time to carry out these checks. We can not be held liable for anyone missing the auction due to their checks not being completed in time.
FEES**
In addition to the bid price, you may be responsible for administration fees, other non-optional fees, and potentially the repayment of search and other costs. All lots are subject to the Common Auction Conditions and applicable Special Conditions of Sale. Before bidding, carefully review all available legal documentation to understand your potential liabilities. This includes potential costs such as Stamp Duty, Land Registry fees, and VAT, which may be applicable upon completion. If you have any doubts, please consult with your own professional advisors.
* Generally speaking Guide Prices are provided as an indication of each seller's minimum expectation, i.e. 'The Reserve'. They are not necessarily figures which a property will sell for and may change at any time prior to the auction. Virtually every property will be offered subject to a Reserve (a figure below which the Auctioneer cannot sell the property during the auction) which we expect will be set within the Guide Range or no more than 10% above a single figure Guide.
Submit an enquiry and someone will be in contact shortly.
By setting a proxy bid, the system will automatically bid on your behalf to maintain your position as the highest bidder, up to your proxy bid amount. If you are outbid, you will be notified via email so you can opt to increase your bid if you so choose.
If two of more users place identical bids, the bid that was placed first takes precedence, and this includes proxy bids.
Another bidder placed an automatic proxy bid greater or equal to the bid you have just placed. You will need to bid again to stand a chance of winning.